上海1188金融中心鼎立陆家嘴-联洋板块,坐享浦东行政圈和证券交易所、证券登记所、期货交易所等金融圈层辐射利好,承接陆家嘴金融贸易区、自由贸易试验区、外高桥保税区、金桥经济技术开发区、张江高科技园区五大产业集群势能。
上海1188金融中心总建筑面积约为77,000平方米,其中办公建筑面积约为47,000平方米,总高16层,已有中建设计院、住友重机械、德国汉诺威再保险、光大证券等众多知名企业入驻。
上海1188金融中心自持商业建筑面积约为10,000平方米,商业以满足办公日常餐饮需求为主,已引进星巴克、喜茶等品牌。
上海1188金融中心以智能化办公、健康办公、优质服务等优势,提供国际甲级写字楼的优质办公体验,致力打造区域商务标杆。
上海1188金融中心闸机处采用人脸识别,即使高峰时期也不会造成闸机通道拥堵,高效便捷。此外,本项目已获得国际绿色建筑LEED金级预认证,以绿色环保为办公环境首要考量,更纳入人文关怀,注重空间的健康与舒适。
上海1188金融中心位处联洋商圈,周围丁香商业广场、大拇指广场、联洋广场等商场林立。近享淳大万丽、证大丽笙等五星级酒店,满足商旅所需。周边新国际博览中心、东方艺术中心、上海科技馆、浦东展览馆、 喜马拉雅中心等艺术场馆云集,艺术人文氛围浓厚。
上海1188金融中心地下商业直连地铁9号线、18号线一站即达世纪大道,多轨交便捷换乘,畅达上海各大商圈。城市主干道杨高中路/民生路在侧;紧邻内环高架,零距离融入城市交通网。快速对接陆家嘴,直通浦东国际机场。此外,184路、794路等多条公交线路亦可直达本项目附近。

上图为上海1188金融中心外观
大厦信息
大楼名称:1188金融中心 竣工时间:2019年 邮编:200135
地址:浦东新区民生路1188号 所属商圈:联洋 所属街道:花木街道
总建筑面积:77000㎡ 标准层面积: 3400㎡ 最小分割面积:308㎡
开发商:ARA Asset Management Limited 物业公司:自持物业 是否可注册:是
租金价格: 6-8元/㎡/天 物业费:36元/㎡/月
总楼层:名义19层,实际16层 层高:3米
车位数量:约340个 车位费: 固定1800元/月,非固定1400元/月
电梯数量:11部客梯、2部货梯 网络:电信、联通、移动
空调:中央空调 空调开放时长:周一到周五早上8:00~18:30,周六日早8:00~13:30
得房率:70% 绿化率:10% 容积率:1.5
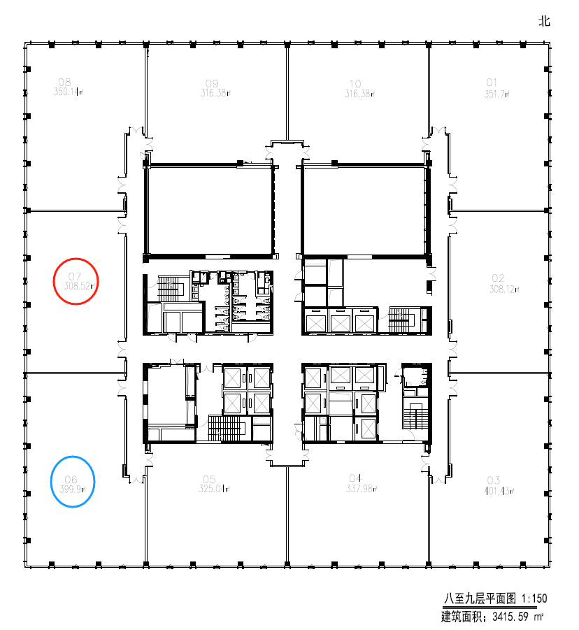
大厦租赁面积
308㎡、325㎡、337㎡、351㎡、401㎡、633㎡、971㎡

上图为上海1188金融中心平面图
交通出行
地铁: 9/18号线杨高中路站地铁上盖
机场:距离上海浦东国际机场37公里,驾车需35分钟,距离上海虹桥国际机场24公里,驾车需35分钟
火车站:距离上海火车站17公里,驾车需要33分钟,距离上海虹桥火车站24公里,驾车需要38分钟
公交站:灵山路苗圃路 (公交站)、丁香路长柳路 (公交站)、民生路丁香路 (公交站)、杨高中路民生路 (公交站)、民生路锦绣路 (公交站)、丁香路民生路 (公交站)、杨高中路地铁站 (公交站)、迎春路民生路 (公交站)、丁香路合欢路 (公交站)、迎春路合欢路 (浦东展览馆)(公交站)、合欢路丁香路 (浦东市民中心)(公交站)、杨高中路杨源路 (公交站)、迎春路长柳路 (公交站)、合欢路含笑路 (浦东少年宫)(公交站)
公交线路:794 路、184 路、59 路、987 路、浦东 36 路、640 路、花木 1 路、浦东 78 路

上图为上海1188金融中心地理位置
周边配套
餐饮: 老乡鸡、麦当劳、全家便利店、谷田稻香、张拉拉兰州手撕牛肉面、子固路老南昌拌粉、鱼你在一起下饭煎鱼、食当家、掌上韩品、司熟、马上诺意式手工比萨、西树泡芙、继光香香鸡、1 点点、星巴克臻选、喜茶、贝尼泰迪 de 炸鱼薯条、左庭右院鲜牛肉火锅、上上谦火锅、柴门饭儿、甬府小鲜、荷风细雨・中国茶宴、鳗享屋・日本家庭料理、炉匠炉端・串烧・锅物、银平、广府鹅夫人、超点 Super Dimsum、懿・EAST、厢房、就是川川食酒肆、Camelia 餐厅、尚席中餐厅、晨曦食补养生炖品阁、松鹤楼菜馆、上海滩餐厅、橘焱胡同烧肉夜食、捞王锅物料理、清晨家烤肉、wineapp 葡萄酒餐吧、伽喱博士 Dr・CURRY・咖喱、菁禧荟・宴会厅、翠蝶川菜、琥家拉面、上海老饭店・宴会厅、松鹤楼面馆、上海会馆、南翔馒头店、居於里・Teppanyaki、春风松月楼、大马南香、浦之舟、丰收日 。
购物:证大大拇指广场、浦东嘉里城、LCM 置汇旭辉广场、锦绣坊、证大五道口广场、联洋广场、正大生活馆(杨高中路店)
银行:中国农业银行(上海羽山路支行、联洋支行)、中国工商银行(上海市联洋支行、联洋第二支行)、交通银行(上海民生路支行、联洋支行)、浦发银行(迎春路社区支行、联洋支行)、中国光大银行(上海联洋支行)、兴业银行(上海灵山路社区支行、丁香支行)、上海银行(世纪大道支行、联洋支行)、中国银行(上海市联洋支行)、中国建设银行(上海市民中心支行)、广发银行(联洋社区支行)、恒生银行(迎春路支行)、渤海银行(上海联洋社区支行)、友利银行(证大大拇指广场)、华侨银行(上海世纪广场支行、中国总行)、中国民生银行(汇商大厦支行、世纪公园支行)、星展银行(上海花木支行)、汇丰银行(联洋广场支行)
学校:东方幼儿园(丁香部)、上海市进才中学、上海市进才实验中学、上海通利音乐艺术专修学校(丁香路分校)、上海市医药学校、上海民办福山正达外国语小学、上海纽约大学、上海市进才中学北校、福山外国语小学花园校区
医院:上海市东方医院、上海交通大学医学院附属仁济医院东院、上海交通大学医学院附属仁济医院北院、上海市第一妇婴保健院 (东院)、上海市浦东新区公利医院、上海长航医院、洋泾社区卫生服务中心 (灵山路)、上海华美医疗美容医院、圣瑞医疗圣欣门诊部、善爱齿口腔、赵宏斌口腔诊所、上海仁济医院生殖医学中心
停车场:上海 1188 金融中心停车场、丁香国际商业中心停车场、联洋广场停车场、淳大万丽酒店停车场、证大丽笙酒店停车场、丁香路路侧停车位(第九城市西北侧)、丁香路路侧停车位(民生路 - 芳甸路)、丁香路路侧停车位(芳甸路 - 紫槐路)、含笑路路侧停车位(民生路 - 合欢路)、仁恒河滨城一期停车场、仁恒河滨城二期停车场、第九城市一期停车场、第九城市二期停车场
入驻企业
上海星巴克咖啡经营有限公司丁香国际商业中心店、上海丁香商业经营管理有限公司、上海立根融资租赁(上海)有限公司、上海中建建筑设计院有限公司、上海物三私募基金管理有限公司、上海文云信息科技有限公司、上海亘宇资产管理有限公司、上海素冠实业有限公司、上海积土兴企业管理咨询有限公司、东营盈驰农业发展有限公司、上海景湾兆业房地产开发有限公司、上海兰亭集势信息技术有限公司、上海贝瞳佳悦眼科门诊部有限公司、上海点峰景观设计中心、东营拓健财务咨询有限公司、上海中建建筑设计院有限公司工会委员会、光大证券股份有限公司上海民生路证券营业部